Bleiben Sie informiert
Abonnieren Sie unseren Newsletter und erhalten Sie regelmäßig exklusive Immobilienangebote, inspirierende Wohnideen, aktuelle Marktanalysen und spannende Neuigkeiten – direkt in Ihr Postfach.
In diesem Exposé werden ein Mehrfamilienhaus und eine Gewerbeeinheit (Ladenlokal) vorgestellt, die sich gemeinsam auf einem 454 m² großen Grundstück befinden und nur im Paket veräußert werden.
Die relevanten Informationen zu beiden Objekten finden Sie im Abschnitt „Beschreibung“ sowie in den weiteren Erläuterungen dieses Exposés.
Gewerbeeinheit / Ladenlokal (Hausnummer: 115)
Baujahr: 1950
Das im Erdgeschoss gelegene Ladenlokal wird aktuell als Café betrieben und bietet vielseitige Nutzungsmöglichkeiten – ideal für Gastronomie oder Einzelhandel. Die große Fensterfront sorgt für sehr gute Sichtbarkeit und Tageslicht. Die Lage an einer belebten Straße mit guter Verkehrsanbindung garantiert hohe Kundenfrequenz. Öffentliche Parkplätze (bis zu 2 Stunden kostenfrei) direkt vor dem Haus erhöhen die Erreichbarkeit für Laufkundschaft.
Besonders attraktiv für Kapitalanleger: Im rückwärtigen Bereich steht eine ca. 68 m² große Lagerfläche zur Verfügung, die flexibel nutzbar ist – etwa als Lager, Produktionsraum oder Erweiterung der Gewerbefläche. Nach entsprechender Genehmigung ist ein Ausbau um bis zu drei zusätzliche Etagen möglich – ein großes Entwicklungspotenzial. Die Umgebung ist geprägt von Gastronomie, Handel und Dienstleistern.
Mehrfamilienhaus (Hausnummer: 115A)
Baujahr: 1900
Das viergeschossige Wohnhaus mit mehreren Einheiten ist renovierungsbedürftig. Die Raumaufteilung eignet sich ideal für Monteurzimmer oder Wohngemeinschaften (WG). Das Gebäude liegt ruhig im Hinterhof, hat aber einen separaten Zugang zur Straße. Die gute ÖPNV-Anbindung und Nähe zu Einkaufsmöglichkeiten machen das Objekt interessant für langfristige Mieter.
Ist-Miete: ca. 32.400 €/Jahr
Soll-Miete: ca. 57.600 €/Jahr
(Das Haus ist aktuell vollständig leerstehend.)
Die Straße in Wuppertal-Barmen bietet eine äußerst attraktive Lage für Gewerbeobjekte. Die Lage befindet sich an einer sehr belebten und gut frequentierten Straße, die durch zahlreiche Gastronomie- und Einkaufsmöglichkeiten geprägt ist. Direkt vor dem Ladenlokal sind Parkmöglichkeiten entlang der Straße vorhanden, die den Kunden einen einfachen und bequemen Zugang ermöglichen. Die hervorragende Anbindung an den öffentlichen Nahverkehr mit mehreren Bus- und Straßenbahnlinien in der Nähe garantiert eine optimale Erreichbarkeit. Zudem befinden sich in der Umgebung mehrere Arztpraxen und Apotheken, die zusätzlichen Publikumsverkehr sicherstellen.
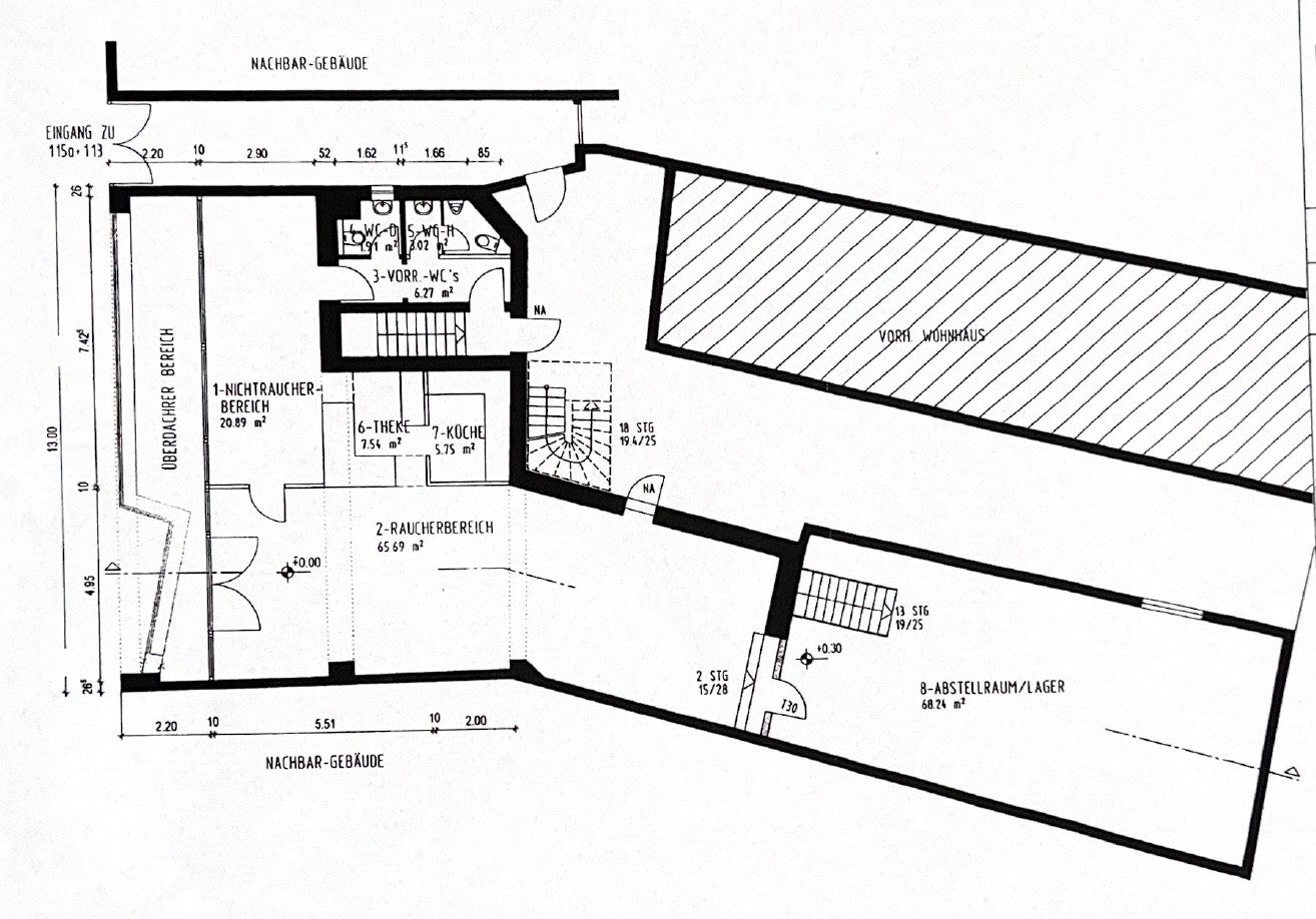
Ladenlokal mit Lagerflãchenanbau- Ca. 179 Quadratmeter + Kellergeschoss Baujahr: 1950
KG: Kellerflur, Nebenflãchen, Treppe zum EG, Hausanschluss- und Heizungsraum;
EG: Gastraum mil Theke, Herren- und Damen-WC, Lagerfläche, Durchgang zum Innenhof.
Gewerbeeinheit – Rohbau
Fundamente und Bodenplatte wurden in Beton ausgeführt. Tragende Wände bestehen aus massivem Mauerwerk, nicht tragende Wände teils in Mauerwerk, teils in Leichtbauweise. Die Decken sind aus Stahlbeton, zum Kellergeschoss führt eine massive Treppe. Das Flachdach ist mit Bitumenbahnen abgedichtet.
Gewerbeeinheit – Innenausbau
Die Schaufensteranlage besteht aus einer pulverbeschichteten Leichtmetall-Rahmenkonstruktion mit Isolierverglasung. Weitere Fenster sind aus Kunststoff, ebenfalls mit Isolierverglasung. Die Böden sind überwiegend mit Keramikfliesen versehen, der Eingangsbereich wurde mit Naturstein gestaltet. Elektro- und Sanitärinstallationen wurden modernisiert und befinden sich in gutem Zustand. Die Beheizung erfolgt über eine zentrale Gasheizung, Warmwasser wird dezentral bereitgestellt.
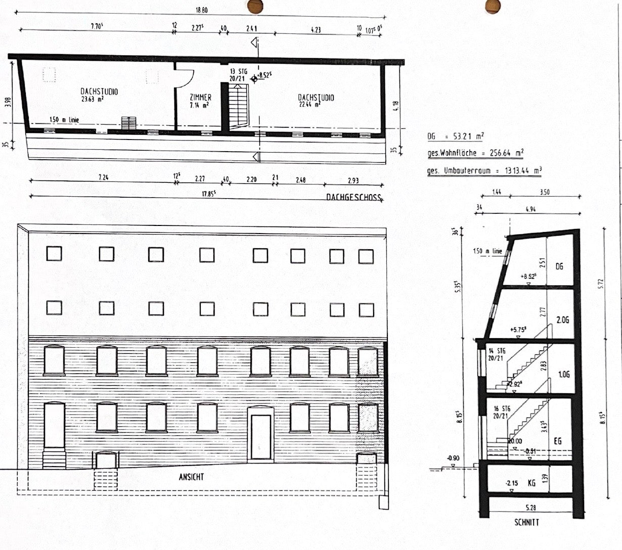
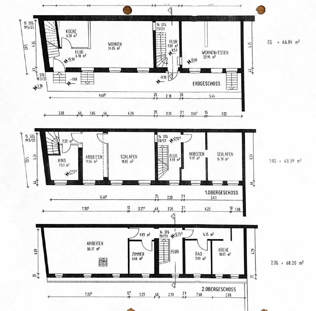
Wohnhaus – (Ca. 256 Quadratmeter Wohnfläche) Baujahr: 1900
Rohbau
Das Fundament besteht aus Beton oder Mauerwerk. Tragende Wände sind in massiver Mauerwerksbauweise ausgeführt. Über dem Kellergeschoss befindet sich eine Kappendecke, in den Wohngeschossen Holzbalkendecken. Die Außentreppe zum Keller ist massiv, innen verlaufen Holztreppen. Das Berliner Dach ist in Holzkonstruktion.
Wohnhaus – Innenausbau
Die gestrichene Ziegelfassade sowie Kunststofffenster mit Isolierverglasung prägen das äußere Erscheinungsbild. Hauseingangstüren aus Kunststoff mit Glaseinsätzen, Innentüren in Holzfurnier. Die Bodenbeläge bestehen überwiegend aus Laminat. Elektro- und Sanitärinstallationen sind zeitgemäß. Beheizt wird das Gebäude über eine zentrale Gasheizung, Warmwasser zentral.
Baujahr: 1900-1950 Komplett Grundstück: 450 m2
Ist Miete: 32400 Jahr- Soll Miete : 57600 Jahr (das MFH ist komplett leer.
Haben wir Ihr Interesse geweckt?
Wir freuen uns darauf, von Ihnen zu hören!
Zur Klarstellung weisen wir darauf hin, dass unsere Vermittlungs-/Nachweistätigkeit eine Courtage in Höhe von 3,57 % des Kaufpreises inklusive der gesetzlichen Mehrwertsteuer zur Folge hat, zahlbar nach Abschluss des notariellen Kaufvertrags. Mit Ihrer weiteren Anfrage bestätigen Sie die Vereinbarung und Anerkennung dieser Maklerprovision. Die hier genannten Objektinformationen basieren auf den Angaben des Verkäufers. Für deren Richtigkeit übernehmen wir keine Haftung
Immobilienmakler:
Irfan Kaplan
Kaiser Friedrich Str. 168
41460 Neuss
Telefon: 0049 1772359728
E-Mail: irfan.kaplan@goldenclavis.com
Umsatzsteuer-Identifikationsnummer gemäß §27 a Umsatzsteuergesetz:
DE346/442/945
Genehmigung nach § 34 c Abs. 1 Satz 1 Nr. 1 GewO
Aufsichtsbehörde:
Gewerbeaufsichtsamt Rhein-Kreis Neuss, Auf der Schanze 4, 41515 Grevenbroich,
Tel.: 0049 2181 601-3211
Hinweis auf EU-Streitschlichtung:
Die Europäische Kommission stellt eine Plattform zur Online-Streitbeilegung (OS)
bereit: http://ec.europa.eu/consumers/odr
Wir sind nicht verpflichtet und bereit, an einem Streitbeilegungsverfahren
teilzunehmen.
Abonnieren Sie unseren Newsletter und erhalten Sie regelmäßig exklusive Immobilienangebote, inspirierende Wohnideen, aktuelle Marktanalysen und spannende Neuigkeiten – direkt in Ihr Postfach.
Die Inhalte auf unserer Website beruhen auf Informationen von Dritten, insbesondere Eigentümern oder Auftraggebern. Wir geben diese nach bestem Wissen weiter, können aber keine Gewähr für Richtigkeit, Vollständigkeit oder Aktualität übernehmen. Änderungen und Zwischenverkäufe/-vermietungen sind jederzeit möglich.
Danke fürs Abonnieren!
Diese E-Mail wurde registriert!