Bleiben Sie informiert
Abonnieren Sie unseren Newsletter und erhalten Sie regelmäßig exklusive Immobilienangebote, inspirierende Wohnideen, aktuelle Marktanalysen und spannende Neuigkeiten – direkt in Ihr Postfach.
Diese außergewöhnliche Immobilie überzeugt durch ihre moderne Bauweise und eine großzügige Grundstücksfläche von 1.273 m². Das 2014 erbaute Gebäude bietet sowohl die Möglichkeit, es als Zwei-Familienhaus oder als großzügiges Einfamilienhaus zu nutzen. Die durchdachte Aufteilung und die hochwertige Ausstattung erfüllen höchste Wohnansprüche.
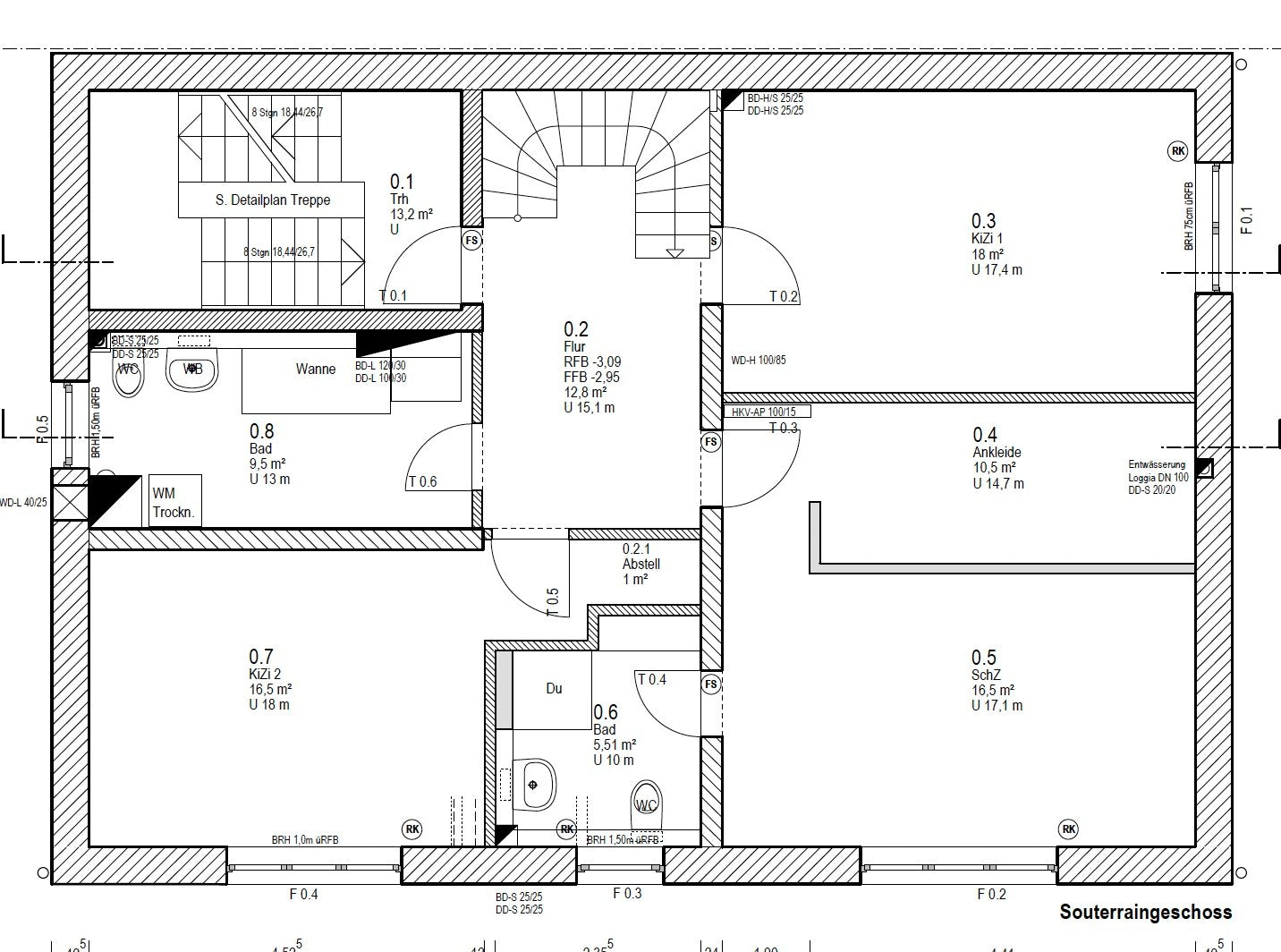
Das Erdgeschoss und das Souterrain wurden zusammen als großzügige Maisonette-Wohnung gestaltet und bieten höchsten Wohnkomfort:
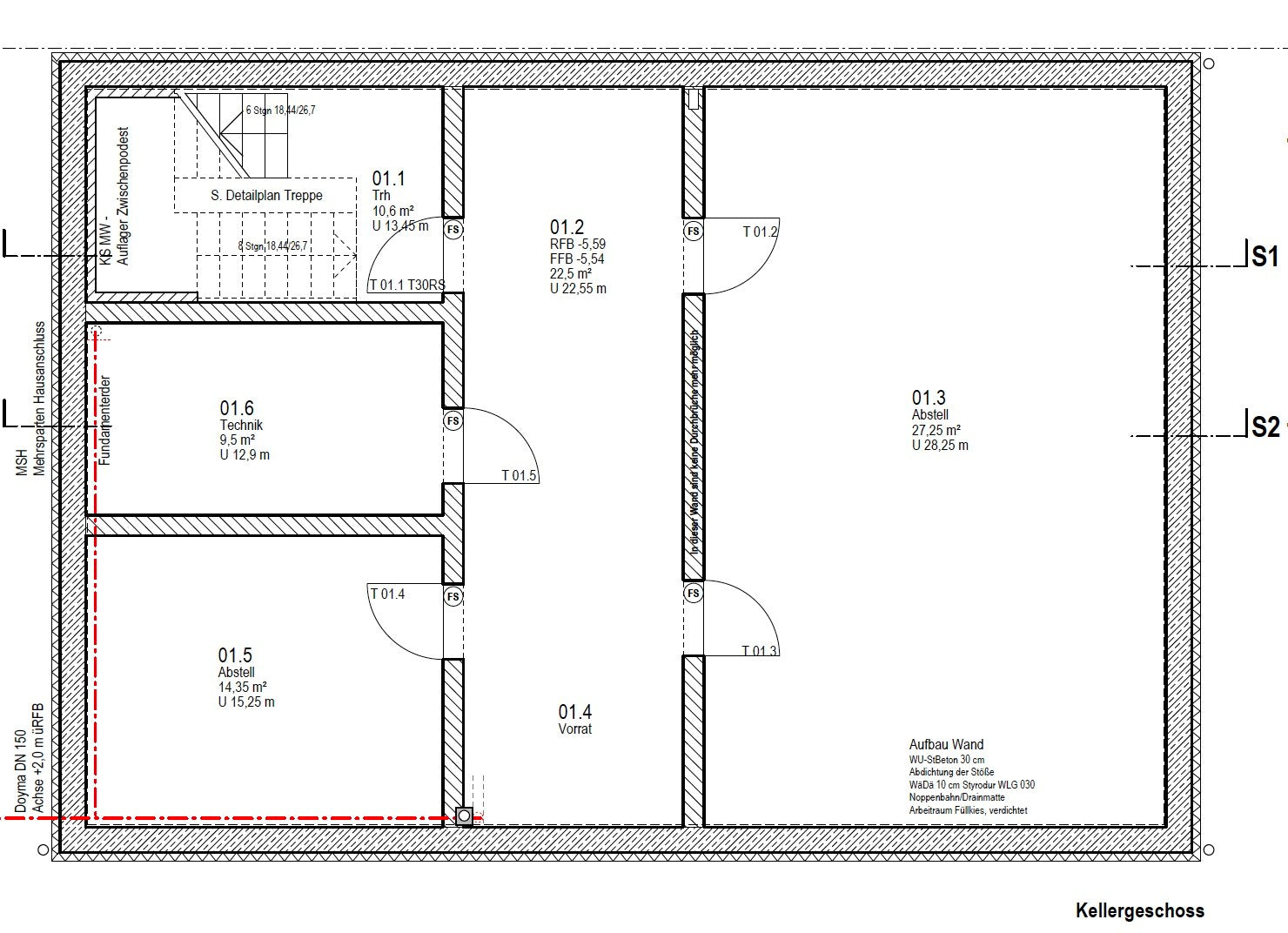
•Souterrain:
Von hier aus haben Sie einen direkten Zugang zum großen Garten. Dieser Bereich ist hochwertig ausgebaut und umfasst:
•Ein modernes, großzügiges Badezimmer.
•Zwei geräumige Kinderzimmer.
•Ein Hauptschlafzimmer, das über ein separates Ankleidezimmer sowie ein eigenes Bad en Suite verfügt.
•Erdgeschoss:
Im Erdgeschoss befindet sich ein heller und offener Wohnbereich mit:
•Einer 41 m² großen Wohnküche, die direkt mit dem geräumigen Wohnzimmer verbunden ist.
•Einem praktischen Abstellraum, der an die Küche anschließt.
•Einem Gäste-WC.
•Einem zusätzlichen Zimmer, das als Arbeitszimmer oder Schlafzimmer genutzt werden kann.
Diese durchdachte Kombination aus Wohn- und Nutzflächen bietet ideale Bedingungen für komfortables und flexibles Wohnen.
Obergeschoss:
Beim Betreten der Wohnung empfängt Sie ein großzügiger Flur, der einen einladenden Zugang zu den Räumlichkeiten der Wohnung bietet.
•Badezimmer:
Ein modernes und großzügiges Bad, das keine Wünsche offen lässt.
•Wohnbereich und Küche:
Die hochwertige Einbauküche ist großzügig gestaltet und bietet viel Platz für kulinarische Entfaltung. Sie ist direkt mit dem lichtdurchfluteten und geräumigen Wohnzimmer verbunden, welches durch seine freundliche Atmosphäre besticht.
Eine Treppe im Flur verbindet den Wohnbereich mit dem ausgebauten Spitzboden, der als gemütliches zwei Schlafzimmer gestaltet wurde. Dieser zusätzliche Räume bietet vielseitige Nutzungsmöglichkeiten und rundet das Gesamtbild der Immobilie harmonisch ab.
Die Immobilie befindet sich in einem attraktiven und gut angebundenen Stadtteil von Köln, genauer gesagt in Ostheim, einem aufstrebenden Stadtviertel östlich des Zentrums. Die Frankfurter Straße ist eine der Hauptverkehrsachsen der Region und bietet eine hervorragende Infrastruktur mit vielen Einkaufsmöglichkeiten, Restaurants, Cafés und Dienstleistungen in unmittelbarer Nähe.
Dank der guten Verkehrsanbindung erreichen Sie die Kölner Innenstadt in nur wenigen Minuten. Öffentliche Verkehrsmittel wie Straßenbahn und Bus sind fußläufig erreichbar und bieten regelmäßige Verbindungen in die umliegenden Stadtteile. Auch die Autobahnen A3 und A4 sind schnell zu erreichen und sorgen für eine optimale Anbindung an das regionale Verkehrsnetz.
Ostheim ist bekannt für seine grünen Erholungsflächen wie den nahegelegenen Parks, der zu Spaziergängen und sportlichen Aktivitäten einlädt. Schulen, Kindergärten und medizinische Einrichtungen befinden sich ebenfalls in der Umgebung und machen diese Lage besonders familienfreundlich.
Kurz gesagt, der Stadtteil Ostheim vereint die Vorzüge einer zentralen Lage mit einer lebendigen Nachbarschaft und hervorragender Infrastruktur.
Das Haus verfügt über ein modernes KNX-Elektroinstallationssystem, das eine intelligente Steuerung von Beleuchtung, Heizung und anderen elektrischen Komponenten ermöglicht. Zudem sorgen elektrische Rollläden an allen Fenstern für zusätzlichen Komfort.
Für das gesamte Gebäude, einschließlich des Kellers, ist eine zentrale Lüftungsanlage installiert, die für ein angenehmes Raumklima sorgt.
Ein weiteres Highlight ist das zentrale Internetsystem, das alle Räume des Hauses abdeckt und eine optimale Verbindung gewährleistet. Die Zimmer im Untergeschoss bieten zudem Zugang zu kleinen, eigenen Terrassenbereichen, die einen direkten Bezug.
Im Garten ist eine vollständige elektrische Beleuchtungsanlage installiert, die für stimmungsvolle Akzente sorgt. Ebenso wurde ein automatisches Bewässerungssystem integriert, das die Pflege der Außenanlagen erleichtert. Zusätzlich befinden sich im Garten zwei Bereiche mit bereits verlegtem Betonboden, die ideal als Pavillons oder Gartenhäuschen genutzt werden können.
Dieses umfangreiche Ausstattungspaket macht das Haus zu einem einzigartigen Wohnobjekt, das Komfort, Funktionalität und moderne Technik perfekt vereint.
Boden: Marmor- Ausgebauter Spitzboden: Laminat
Türen: Holz
Bäder mit Tageslicht: Fliesen
Heizung: Wärme Pumpe- Fußbodenheizung
Stellplätze: 6
Keller: Vollunterkellert- Boden: Marmor
Großer Garten
Fenster: Kunststoff- 3 Fach Verglast
Haben wir Ihr Interesse geweckt?
Wir freuen uns darauf, von Ihnen zu hören!
Zur Klarstellung weisen wir darauf hin, dass unsere Vermittlungs-/Nachweistätigkeit eine Courtage in Höhe von 3,57 % des Kaufpreises inklusive der gesetzlichen Mehrwertsteuer zur Folge hat, zahlbar nach Abschluss des notariellen Kaufvertrags. Mit Ihrer weiteren Anfrage bestätigen Sie die Vereinbarung und Anerkennung dieser Maklerprovision. Die hier genannten Objektinformationen basieren auf den Angaben des Verkäufers. Für deren Richtigkeit übernehmen wir keine Haftung
Immobilienmakler:
Irfan Kaplan
Kaiser Friedrich Str. 168
41460 Neuss
Telefon: 0049 1772359728
E-Mail: irfan.kaplan@goldenclavis.com
Umsatzsteuer-Identifikationsnummer gemäß §27 a Umsatzsteuergesetz:
DE346/442/945
Genehmigung nach § 34 c Abs. 1 Satz 1 Nr. 1 GewO
Aufsichtsbehörde:
Gewerbeaufsichtsamt Rhein-Kreis Neuss, Auf der Schanze 4, 41515 Grevenbroich,
Tel.: 0049 2181 601-3211
Hinweis auf EU-Streitschlichtung:
Die Europäische Kommission stellt eine Plattform zur Online-Streitbeilegung (OS)
bereit: http://ec.europa.eu/consumers/odr
Wir sind nicht verpflichtet und bereit, an einem Streitbeilegungsverfahren
teilzunehmen.
Abonnieren Sie unseren Newsletter und erhalten Sie regelmäßig exklusive Immobilienangebote, inspirierende Wohnideen, aktuelle Marktanalysen und spannende Neuigkeiten – direkt in Ihr Postfach.
Die Inhalte auf unserer Website beruhen auf Informationen von Dritten, insbesondere Eigentümern oder Auftraggebern. Wir geben diese nach bestem Wissen weiter, können aber keine Gewähr für Richtigkeit, Vollständigkeit oder Aktualität übernehmen. Änderungen und Zwischenverkäufe/-vermietungen sind jederzeit möglich.
Danke fürs Abonnieren!
Diese E-Mail wurde registriert!